FACILITY

施設紹介

安心と笑顔が広がる、
もうひとつの我が家

利用者一人ひとりが自分らしく安心して暮らせる住環境を提供しています。
各施設では、快適な住まいときめ細やかなサポートを整え、
地域とのつながりを大切にした温かなコミュニティを築いています。
この場所で、新しい生活を一緒に始めてみませんか?


障がい者グループホーム

つながりの家永和台

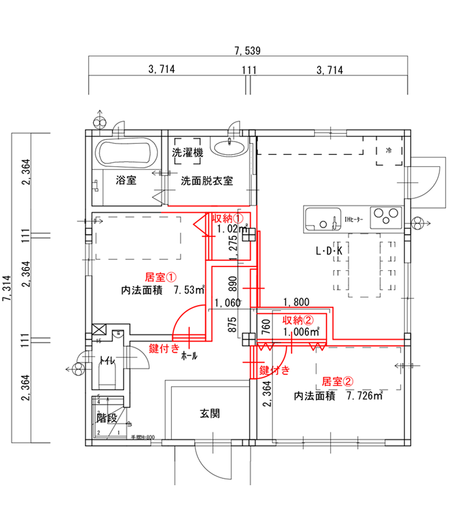
1F

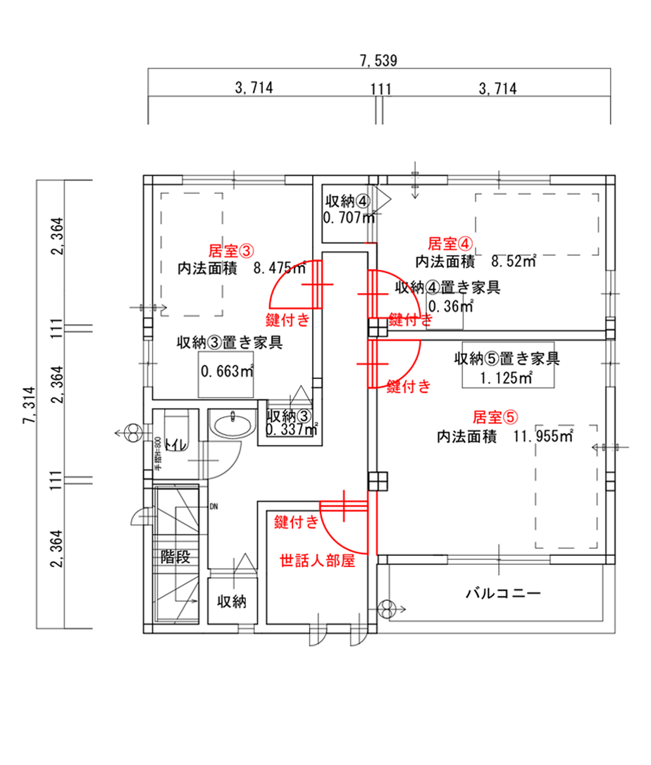
2F

利用料合計: 79,500円 / 月

住所:
愛知県愛西市大井町宮新田39-16
交通:
愛知巡回バス「永和台南」停 徒歩2分
定員:
5名
施設:
居室5室(全室洋室)、風呂、トイレ2カ所、ダイニング

CONTACT

お問い合わせ

お電話・FAXでのお問い合わせ

090-7612-2580

052-308-4541

平日 10:00 ~ 18:00

メールでのお問い合わせ

お問い合わせはこちら